graphic design, environmental design, architecture competitions, sculpture, experience design
 
     
     Private Residence
Long Thanh, Vietnam
2016
Our first project in SE Asia, this new home is set near the vibrant urban core of a peripheral city 40km East of Ho Chi Minh City in Southern Vietnam. When completed, the 4200 sf home will also include three on-site retail income properties for this entrepreneurial couple nearing retirement, and an empty nest. Given the near-Equatorial climate, the home has been oriented on the site to block the patio and garden from the intense sun, while still allowing maximum outdoor engagement. Additionally, city noise was given extensive consideration and strategies were employed to dissipate noise as much as possible. The home will have large open French doors to the patio and garden on the ground floor, and views across the city from the second floor bedrooms and baths. It is currently nearing completion.
 
    COMPLETED PHOTOS
 
        
        
        
        
        
        
        
        
        
        
        
        
        
        
        
        
        
        
        
       view of custom gate to main house entry and garden with two rental units on left
formal entry
view from kitchen through open living area
view of chandelier and top of staircase with loft
view of kitchen
view from loft to open living area
second floor in-suite wet bath
master bath vanity
view between structures
dusk through garden trellis
<
>
 
    DRAWINGS AND RENDERINGS
 
        
        
        
        
        
        
        
        
        
       interior sketch study, view from kitchen towards living area and garden
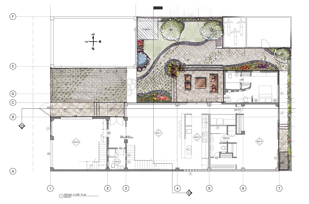
ground floor plan with garden concept sketch
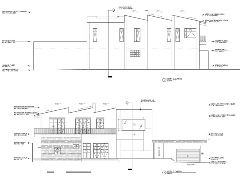
north – south elevations
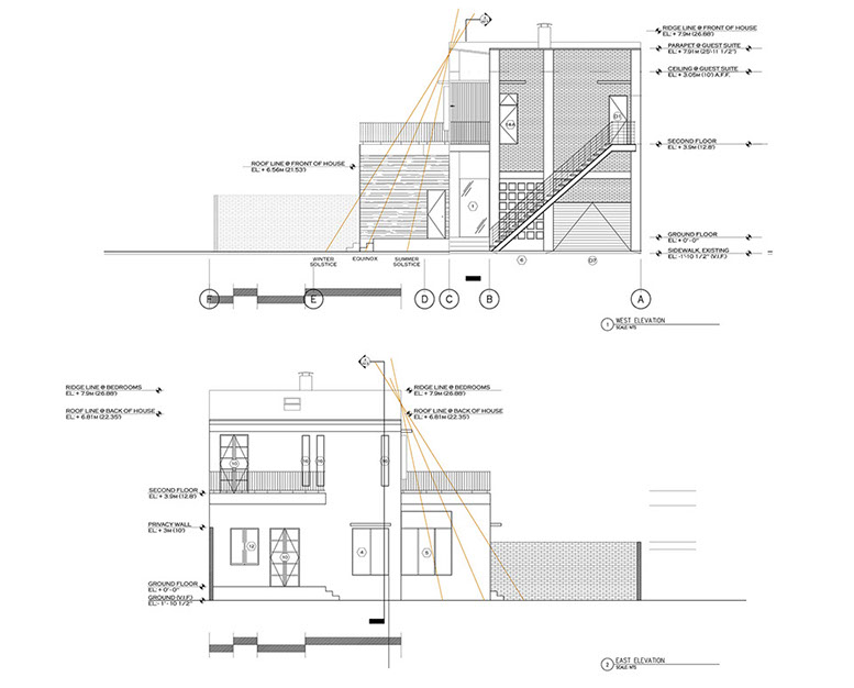
east – west elevations with sun-angle analysis
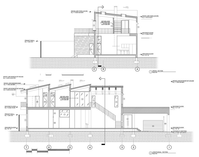
building sections
<
>
PRELIMINARY SITE ANALYSIS, SKETCHES, AND EXPLORATIONS
 
        
        
        
        
        
        
        
        
        
       preliminary study of entry foyer and vista
preliminary study sketch
preliminary study
site one preliminary study. ground floor and site plan
site one preliminary study. second floor plan
<
>
CONSTRUCTION PHOTOS
 
      
      
     
      
      
      
      
      
      
      
      
      
         
         
         
         
         
         
         
         
         
         
         
         
         
         
         
         
         
        handrail details
left, rain water drip design; right, front door design
fabricator working through numbers
entertainment center and storage console
sometimes Michael is caught free sketching while he can't follow the conversation in Vietnamese
napkin sketch of veranda and trellis
quick sketch for the contractor
finial study
gate study
<
>
 
      
      
      
      
      
      
      
      
    